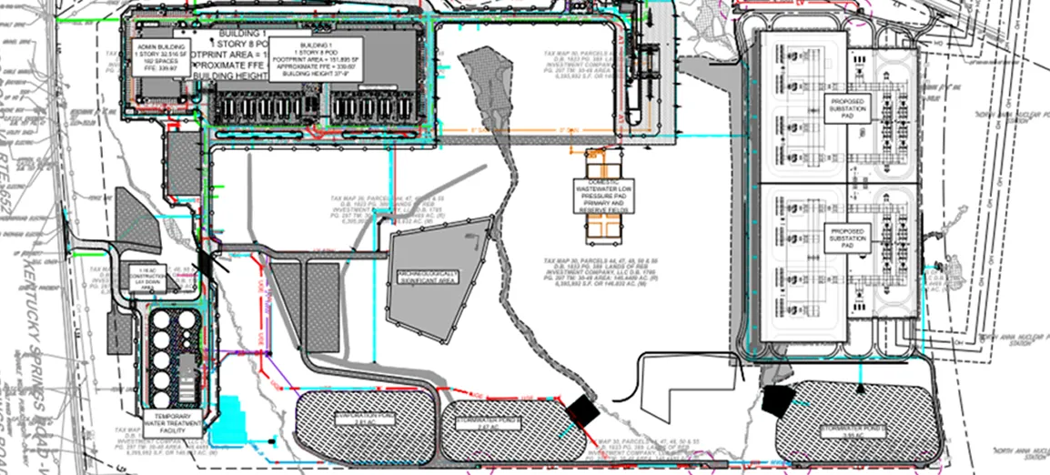
The proposed development on a 150-acre site in Virginia, involves the construction of a data center campus spanning 150 acres, featuring eight data hall facilities exceeding 1.6 million square feet and 390 megawatts, alongside a central administration building, two onsite power distribution substations, and a water treatment facility, necessitating massive site work exercise including tree clearing, paving, utilities, stormwater management infrastructure, and landscaping.


Fractile's primary role in this project was Revit modeling, leading coordination & shop drawings preparation of the entire site & underground utilities, where the scope included underground utilities, below-grade fixtures, specialty equipment railings/fencing and temporary utilities. Fractile also managed clash detection and leading weekly BIM Coordination Meetings to identify and resolve conflicts among site utilities, fencing, and buildings; updating models; alerting Clark to potential RFIs; and incorporating approved RFI responses. This was done per the adherence to the BIM Execution Plan and utilizing platforms like Procore for model management and ultimately delivering As-Built models and drawings reflecting design and field changes to the client upon construction completion.
On this project, Fractile's capabilities directly address the core requirements of modeling, coordination leadership, and shop drawing preparation for the entire site and underground utilities scope. Fractile’s team leveraged their expertise in organizing and updating 3D Revit models, for a wide range of elements, highlighting Fractile’s expertise in multi-stakeholder environment. Fractile set up and utilizing Procore, a key component of their ACC proficiency, for efficient model management and collaboration with the project teams. Our role in leading clash detection and weekly BIM Coordination Meetings showcased their ability to facilitate alignment across different disciplines and manage live project updates in this multistakeholder environment. Fractile’s commitment to providing additional BIM consulting services and ultimately delivering As-Built documentation further demonstrates our comprehensive BIM management capabilities for this complex site utilities project.

Years of Combined experience
Projects completed
Clients worked With
At Fractile, you'll work on impactful projects, learn from seasoned leaders, and grow your technical craft. If you're committed to excellence, we're committed to you.